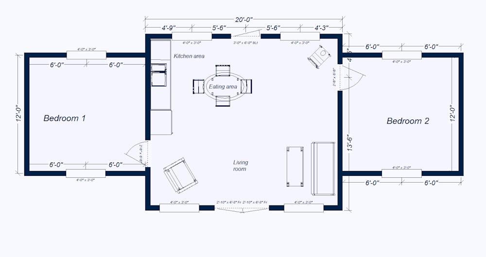
The Ruxton
- Ruxton Island, BC, Canada
Ruxton Floor plan sample - can be adjusted to suit your needs